PARIMALYA PRIME

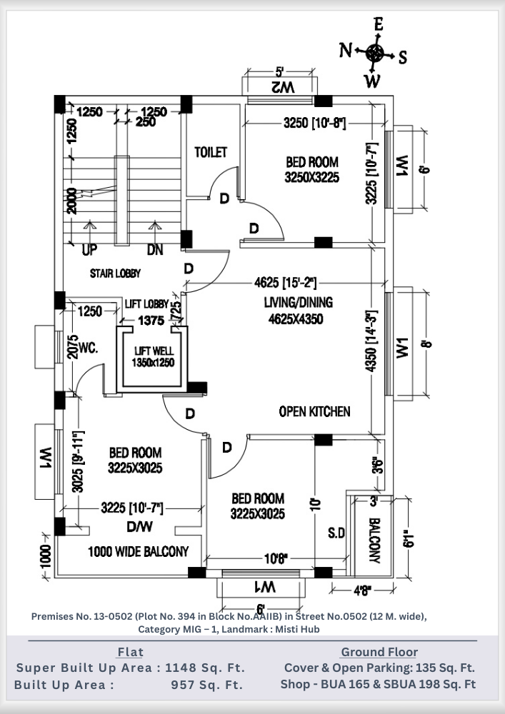
Premises No. 13-0502 (Plot No. 394 in Block No.AAIIB) in Street No.0502 (12 M. wide),

Project Overview

Property Type

Residencial

CONSTRUCTION STATUS

Under Construction

Total Area

8 Kata

Handover

January 2027

Property Price

73 LAKH

Site Address

Premises No. 13-0502 (Plot No. 394 in Block No.AAIIB) in Street No.0502 (12 M. wide),

VIDEO

Amenities

CCTV

CCTV

Elevator

Elevator

Fire Safety

Fire Safety

Parking

Parking

Parks

Parks

Play Area

Play Area

Seniors’ park

Seniors’ park

Budget

3 BHK

73 Lakh

Location

CONTACT Details

Owners Details

RAI CONSTRUCTION

Available Loan Options

Apply with ease, Arthavidhi Relators ensures fast and hassle-free loan assistance.

Home Loan

Home Loan

APPLY
Cash Credit Loan

Cash Credit Loan

APPLY
Overdraft Loan

Overdraft Loan

APPLY
Mortgage Loan

Mortgage Loan

APPLY

Enquiry Now