Available Loan Options
Apply with ease, Arthavidhi Relators ensures fast and hassle-free loan assistance.
Residencial
Under Construction
6 KATA
December 2027
78 LAKH Onwards
Action Area IIB, Newtown, New Town, West Bengal 700161
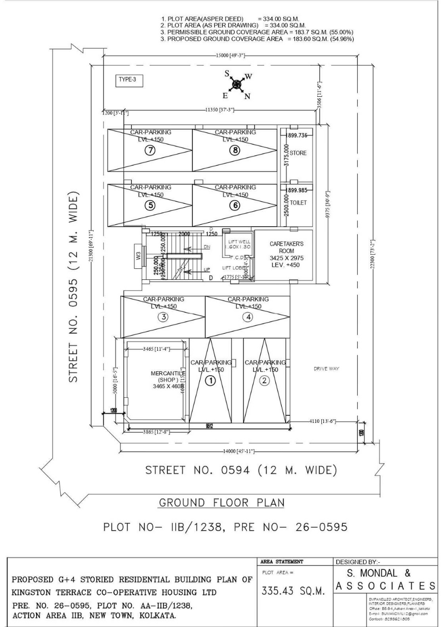
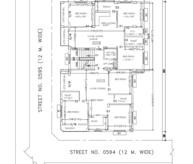
Experience smart and comfortable living at Kingston Terrace Co-Operative (MIG), located at AA-IIB/1238, Kingston Terrace 594/595, New Town. This well-planned 3BHK, 1268 sq ft home priced at ₹78 Lakhs offers an excellent combination of value, location, and lifestyle.
Situated in the rapidly developing Action Area IIB, the project provides smooth access to schools, hospitals, IT hubs, retail zones, and major transportation routes—making daily convenience a part of your routine. Thoughtfully designed layouts, ample natural light, and a peaceful neighbourhood make this an ideal choice for families seeking quality housing at an attractive price.
With possession scheduled for December 2027, Kingston Terrace stands as a promising opportunity for both homebuyers and investors looking for long-term growth in Newtown.
Kingston Terrace – A perfect blend of comfort, convenience, and future potential.
CCTV
Elevator
Fire Safety
Gym
Parking
Parks
Play Area
Seniors’ park